電話でのお問い合わせは03-3591-5371
〒105-0001 東京都港区虎ノ門1-1-20
<2026年2月3日現在・金額は税込>
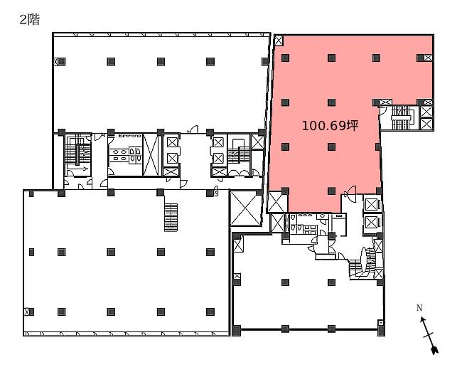
| 階 | 用途 | 面積 | 賃料/敷金 | 共益費/坪 | 入居 | 図面 | 備考 |
|---|---|---|---|---|---|---|---|
| 2 | 事務所 | 100.69坪 | 相談 | 6,545円 | 即可 | ◆ |
| 階 | 用途 | 面積 | 賃料/敷金 | 共益費/坪 | 入居 | 図面/写真 | 備考 |
|---|---|---|---|---|---|---|---|
| B2 | 店舗 | 27.0坪 | 相談 | 6,545円 | 即可 | ◆ / ■ | |
| B1 | 店舗・事務所 | 54.6坪 | 相談 | 6,545円 | 相談 | ◆ | |
| 1 | 店舗※ | 1.5坪 | 相談 | 4,400円 | R8.7月中旬 | ◆ | |
| 8 | 事務所 | 96.25坪 | 相談 | 6,545円 | 即可 | ◆ / ■ | |
| 9 | 事務所 | 16.0坪 | 相談 | 6,545円 | 即可 | ◆ |
| 階 | 用途 | 面積 | 保証金 | 月会費 | 入居 | 備考 |
|---|---|---|---|---|---|---|
| B3 | ブース型事務所 | 1.7坪 | 1ヵ月 | 82,500円 | 即可 |
※別途入会金165,000円/本社登記可/保証金退会時55,000円償却
| 階 | 用途 | 面積 | 賃料/敷金 | 共益費 | 入居 | 図面 | 備考 |
|---|---|---|---|---|---|---|---|
| B1 | 事務所 | 84.6坪 | 相談 | 5,280円 | 即可 | ◆ | 窓・ドライエリア有 |
詳細は下記へお問い合わせください。